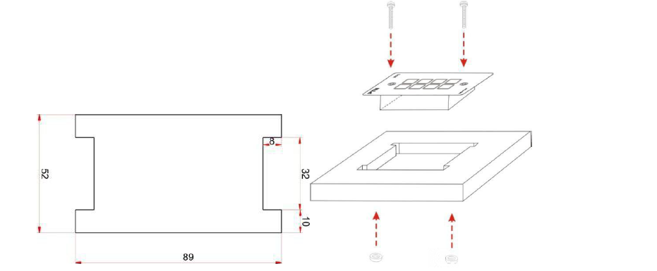
Follow the steps to install the device:
Firstly, dig a hole on the desk to the size marked on the aperture paper (shown in Figure 1-1).
Secondly, put the device into the hole and adjust it to flush with the table (shown in Figure 1-2).
Then, plug a set screw into the fixing mounting and screw the nuts tightly

:Building 3, Baizhong Creative Park, No. 240 Shilian Road, Panyu District, Guangzhou,Guangdong,China
:+86 13928186280(Same WeChat/Whatsapp account)
:+86 20-34702140